Plan 6 | New Homes for Sale in Buckeye, AZ

Single Family Home

Est. Loading... /mo

$412,990

  • Square Footage

    1,971 sq ft

  • Bedrooms

    3 beds

  • Bathrooms

    2 baths

  • Number of Floors

    1 floor

  • Parking Bays

    2 bays

The Vistas Collection
2076 S. 246th Lane,
Buckeye, AZ 85326

phone icon 623-270-7720
watch icon Sales Office Hours

Sales Office Hours

Overview

Ranch | 2 Bay Garage with Entry | Mud Room | Foyer | Laundry Room | Open Kitchen with Island, Pantry and Breakfast Nook | Dining Room | Great Room with Yard Access | Primary Suite with Bath and Large Walk-In Closet | Secondary Bedrooms with Shared Full Bath | Covered Patio

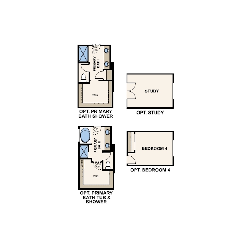
Options:  Study in Lieu of Dining Room, Bedroom 4 in Lieu of Dining Room, Primary Bath Tub and Shower, Primary Bath Shower.

Impressive Included Features:  9’ ceilings throughout, covered patio, front yard landscaping, ceramic tile flooring at entry, kitchen, all baths and laundry, granite slab counters in kitchen and baths, stainless steel kitchen appliances, Century Home Connect smart home technology.

Floor Plan

Interactive Floor Plan

Enjoy a closer look at what this plan has to offer!

Explore homesites at this community!

Get a feel for the neighborhood and find the right homesite for you.

Community Information

The Vistas Collection at Village at Sundance

Final Opportunities at Village at Sundance - Your New Home Awaits!

Step into the final phase of Village at Sundance, where your dream home comes with more than just beautiful design- it comes with a vibrant, wellness-focused lifestyle in a fully developed Buckeye neighborhood.

 

This is your chance to enjoy the best of both worlds: a brand-new home with modern finishes and energy-efficient features, nestled in a mature community with established amenities and scenic surroundings.

 

Why You’ll Love Living Here:

  • Tot lots and playgrounds for fun-filled afternoons with the kids
  • Open greenbelts and walking trails to connect with nature and unwind
  • A community park featuring shaded ramadas and a basketball court
  • Located in the Buckeye Unified School District
  • Easy access to I-10, making commutes and weekend getaways a breeze
  • Close to West Valley employment hubs, shopping, dining, and entertainment

 

Whether you're starting fresh or settling into your forever home, Village at Sundance offers a unique blend of comfort, convenience, and community. With final homes now available, this is your last chance to join a neighborhood that’s already thriving.

 

Contact us to schedule and appointment and discover the lifestyle Of Village at Sundance awaiting you!

Community Amenities

Tot lots and playgrounds
Open greenbelts and trails
Community park with ramadas
Basketball court
Located in the Buckeye Unified School District
Easy access to the I-10 freeway
Close to West Valley employment areas
Near local shopping, dining and entertainment

Schools

  • John S. McCain III Elementary
  • Youngker High School
  • Painted Desert Montessori Academy

Shopping and Dining

  • Sundance Town Center
    Buckeye, AZ 85326
  • Buckeye Marketplace
    Buckeye, AZ 85326
  • Mainstreet at Verrado
    Buckeye, AZ 85396
  • Palermo's Pizza
    Buckeye, AZ 85326
  • Tailgaters & IL Primo
    Buckeye, AZ 85326
  • Cafe Rio Mexican Grill
    Buckeye, AZ 85326
  • Dutch Bros Coffee
    Buckeye, AZ 85326
  • Verrado Grille
    Buckeye, AZ 85326
  • Tempo Urban Bistro
    Buckeye, AZ 85326

Homeowner reviews

See for yourself what our Century Communities homeowners are saying about their dream homes!

Request Information

Do You Currently Rent or Own
I'm a realtor required
Schedule a Tour
By clicking “Submit'” you consent to receiving calls and text messages from Century Communities, our affiliates, marketing partners and sales agents at the phone number provided, including messages sent using an automated system. Century Communities' privacy policy can be found at www.centurycommunities.com/privacy-policy. You understand that by providing your information to us, we will reach out to you via the information you provide us. Standard text message rates apply. Users can opt out of text messages at any time by texting STOP. ©2025 Century Communities, Inc.

 

This site is protected by reCAPTCHA and the Google Privacy Policy and Terms of Service apply.